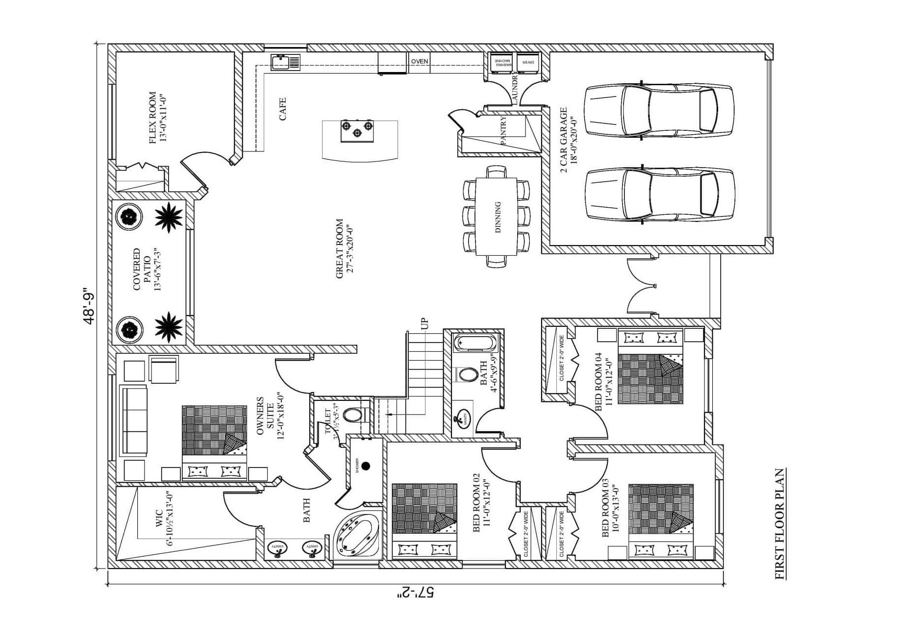
Waves

Waves is a quaint 4 bedroom, 2 bathroom layout with an open kitchen, dining, living area. This modern single-story floor plan offers a 2 car garage, covered patio and a flex room that can be used as an office, craft room or play room.

A compact layout maximizes space and functionality. Lumen delivers everything someone looking for a comfortable home could ask for.

Inquire About This Custom Home Plan

Live Like Royalty - Call Now!